Project Overview:

This residential project encompasses a comprehensive house refurbishment, including a side extension and loft conversion. The client, described as very agreeable, facilitated a smooth design process. Our scope extended beyond traditional architectural services to include the creation of a CGI video, providing the client with a detailed visual representation of the proposed changes. The project successfully navigated the planning permission process, with an additional submission to accommodate the client's late decision to include external air conditioning machinery.

Project Summary:


Project Type: Residential renovation and expansion
Scope: Full house refurbishment + Side extension + Loft conversion
Key Features:
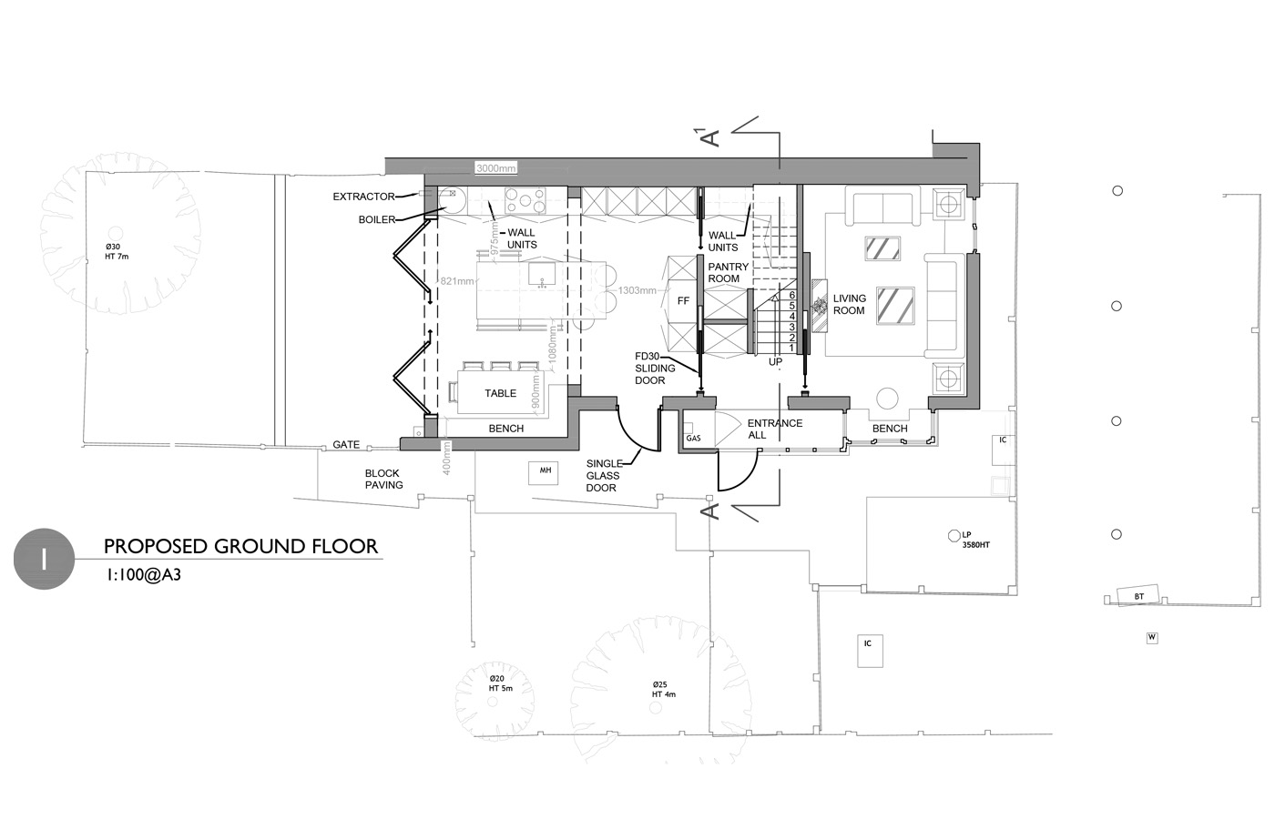
1.Full detailed construction drawings and interior design package
2.Every single item and finish was specified
3.CGI video production for detailed visualization
4.Addition of external AC machinery (post-initial planning)
Planning Process:
1.Initial planning permission obtained in record time
2.Successful resubmission to include external AC units
Client Interaction:
1.Positive and cooperative client relationship
2.Smooth design process
3.Visualization:
4.Creation of a CGI video to showcase the final design
Timeline: Planning permission secured, construction scheduled to begin in summer 2025
Achievements:
1.Rapid approval of initial planning application
2.Flexibility to accommodate client's evolving requirements (AC addition)
This project demonstrates our ability to manage comprehensive residential renovations, effectively communicate design concepts through advanced visualization techniques, and navigate planning processes efficiently. The successful handling of the additional planning requirement for AC machinery showcases our adaptability to changing client needs. With construction set to begin in summer 2025, this project represents a successful collaboration between our firm and a satisfied client, resulting in a thoroughly planned and approved home transformation.








Go Back Top