London UK
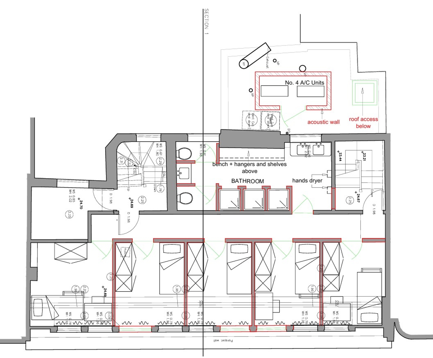
This Central London project involves the expansion and refurbishment of a Hare Krishna temple complex, addressing structural and functional challenges in a historically complex building. The scope includes a three-story rear extension and full refurbishment from the third to sixth floors, while preserving the temple’s spiritual and communal functions. The design aims to modernize facilities, improve monastic living conditions, and enhance kitchen infrastructure for religious and public services.
Location: Central London (ISKCON-affiliated temple, likely connected to Bhaktivedanta Manor’s network)
Scope:
1.Three-story rear extension
2.Full refurbishment of floors 3–6 (including roof and conservatory)
3.Structural reinforcement for additional floors
Key Challenges:
1.Integration of three merged historic buildings into a cohesive structure
2. Lack of elevator and outdated circulation (two staircases)
3. Inadequate kitchen ventilation:
-Basement kitchen for ground-floor restaurant (linked to Govinda’s vegetarian food services)
-Second-floor kitchen for monastic residents
4.Shared sleeping quarters for monks requiring privacy upgrades
Solutions Proposed:
1.Pre-planning structural assessment confirming capacity for two additional floors
2.Redesign of monastic living spaces for privacy
3.Modernization of kitchens to meet ventilation standards (critical for prasadam preparation)
4.Replacement of roof and conservatory for sacred plant cultivation
Design Considerations:
1.Alignment with ISKCON’s spiritual ethos and community needs
2.Preservation of existing deity worship spaces during construction
3.Compliance with Westminster planning guidelines for extensions
Current Status: Planning phase, with structural feasibility confirmed
Anticipated Outcomes:
1.Enhanced facilities for temple operations and resident monks
2.Improved kitchen infrastructure for public offerings (prasadam)
3.Modernized spaces for yoga, meditation, and community events
Significance:
This project reflects the growth of Hare Krishna temples in urban centers, balancing heritage preservation with modern functional demands. The focus on kitchen upgrades aligns with ISKCON’s emphasis on food philanthropy (e.g., "Food for All" programs), while improved monastic accommodations support the temple’s role as a spiritual hub. The rear extension follows precedents set by Bhaktivedanta Manor’s 2016 expansion, demonstrating adaptive reuse strategies for religious buildings in dense urban environments.
Next Steps:
1.Finalize planning permissions with Westminster Council
2.Coordinate with ISKCON’s broader UK network for design consistency
3.Ensure minimal disruption to daily temple activities (deity worship, festivals) during construction