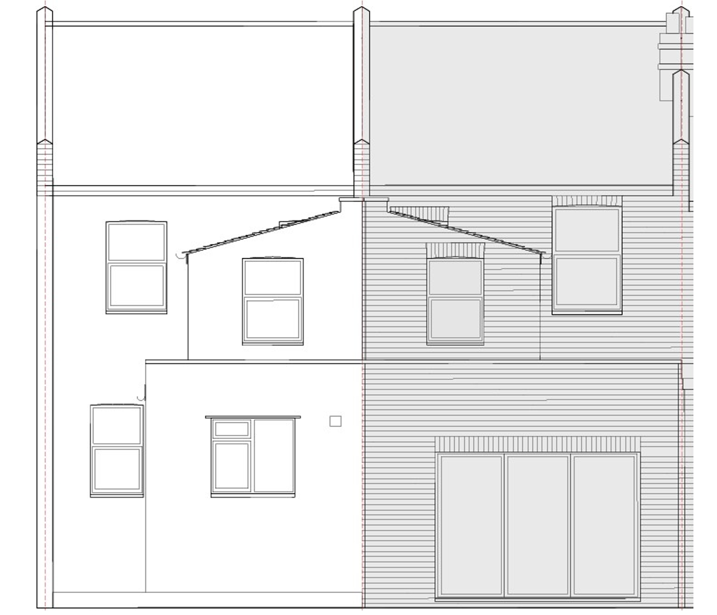
Project Overview:

This project involved a targeted home modification and refresh for an elderly client, focusing on improving accessibility and overall home aesthetics. The primary component was a first-floor bathroom extension, designed to address the client's mobility challenges. The scope expanded to include a complete interior repaint and replacement of front and rear doors. A roof window was later added to the extension, enhancing natural light and ventilation while remaining within permitted development guidelines.

Project Summary:


Client: Elderly homeowner with mobility concerns
Primary Objective: Improve accessibility with a first-floor bathroom extension
Additional Scope:
1.Full house repainting
2.Replacement of front and rear doors
3.Installation of a roof window in the extension
Key Features:
1.First-floor bathroom extension for improved accessibility
2.Roof window addition (under permitted development)
3.Comprehensive interior refresh
Planning and Regulations: Extension and roof window within permitted development scheme
Client Satisfaction:
1.Highly positive feedback
2.Client praised the team for "going the extra mile"
Outcome:
1.Successful completion of all project components
2.Improved accessibility and modernized home aesthetics
This project showcases our ability to address specific client needs, particularly for elderly or mobility-impaired individuals. The successful integration of the bathroom extension and the addition of the roof window demonstrate our expertise in maximizing space and light while navigating planning regulations. The client's high satisfaction and acknowledgment of our extra efforts highlight our commitment to client-centered service and attention to detail in residential projects.








Go Back Top