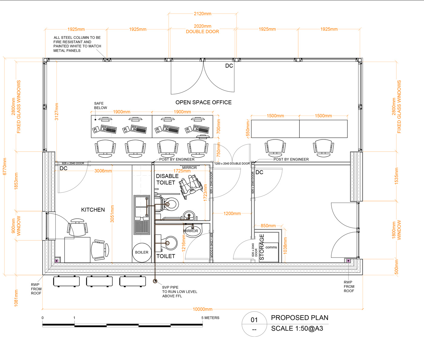
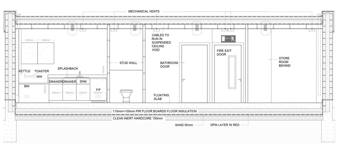
Project Overview:

This project is part of a larger initiative by an international client to establish new office spaces across the UK. Our firm was commissioned to provide comprehensive planning and construction drawings for multiple projects, including this recently completed office building. Our role extended beyond design to include coordination with various professionals, liaison with building control officers, and collaboration with the construction company. The result is a modern, cost-effective office building that surpasses the client's initial expectations in terms of longevity and budget.

Project Scope:


Client: International company expanding office presence in the UK Location: Undisclosed location in the UK
Scope: Design and oversight of new office building construction
Key Responsibilities:
1. Provision of planning and construction drawings
2. Coordination with other professionals involved in the project
3. Liaison with building control officers
4. Collaboration with the construction company
Design Outcome:
1. Modern office space design
2. Longer lifespan compared to initially proposed container solution
3. Lower construction costs than anticipated
Key Achievements:
1. Successful completion of the building
2. Exceeded client expectations in terms of design and cost-effectiveness
3. Efficient collaboration with a fast and competent construction company
Client Satisfaction: Highly positive, particularly regarding our work and the builder's execution
Significance:
1. Part of a larger UK-wide office expansion project
2. Demonstrates ability to deliver high-quality, cost-effective solutions
3. Showcases successful coordination across multiple stakeholders in construction projects
This project highlights our firm's capability to manage complex, multi-stakeholder projects while delivering results that exceed client expectations in terms of both quality and cost-effectiveness. The success of this office building sets a positive precedent for future projects in the client's UK expansion initiative.










Go Back Top