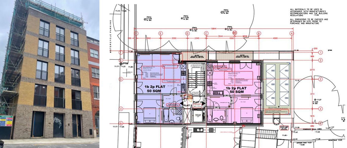
Project Overview:

Our East London Canvas Project is currently in the midst of construction. As the lead architects, we have been managing various aspects of the project, including the development of construction drawings and the submission of an innovative co-living planning application. While our initial vision aimed to introduce a unique concept to the scheme, the local council's decision necessitated a change in direction. Adapting swiftly, we reverted to the original residential plan, ensuring the continuity of the construction process. Throughout the project's evolution, we have maintained a central role, participating in site meetings and coordinating with other professionals to guide the development from its conceptual stage through to completion.

Project Scope:


In East London, our architectural firm's scope of work encompassed a range of responsibilities, including:
- Developing detailed construction drawings
- Designing an innovative co-living concept
- Adapting efficiently to revert to the original residential plan
As the project's lead consultants, we orchestrated the entire process, from initial planning applications through to regular site meetings. Our comprehensive approach ensured a cohesive progression from conceptual design to project completion, maintaining consistency and quality throughout all phases of development.






Go Back Top